Ingatlan adatlap
• Ár: €400,000
• Négyzetméterár: €385
• Hivatalos alapterület: 1040 m2
• Nettó alapterület: 1040 m2
• Típus: HORECA
• Város: Bük
• Parkoló helyek: 1
Ingatlan leírása
Bükön eladó egy jelenleg is jól működő 25 szobás panzió, hozzá tartozó 4700 m²-nyi telekkel és egy emelt szerkezetkész, különálló (apartman)házzal.
A főépület jó állapotú, belül folyamatosan felújított, felszerelt, igényesen bebútorozott. Az ingatlan akár tovább is üzemeltethető a jelenlegi csapattal, de kiválóan alkalmas például idősek otthona kialakítására is, minimális befektetéssel.
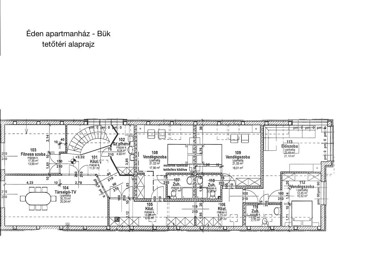
Az ingatlanhoz tartozó építés alatt álló plusz házban igény szerint további apartmanok kialakíthatóak, illetve akár kiszolgáló épületként is funkcionálhat.
A panzió egy 1537 m²-es telken áll, az e mellett található több, mint 3300 m²-nyi terület tovább beépíthető.
A főépület jó állapotú, belül folyamatosan felújított, felszerelt, igényesen bebútorozott. Az ingatlan akár tovább is üzemeltethető a jelenlegi csapattal, de kiválóan alkalmas például idősek otthona kialakítására is, minimális befektetéssel.
Az ingatlanhoz tartozó építés alatt álló plusz házban igény szerint további apartmanok kialakíthatóak, illetve akár kiszolgáló épületként is funkcionálhat.
A panzió egy 1537 m²-es telken áll, az e mellett található több, mint 3300 m²-nyi terület tovább beépíthető.
Lokáció leírása
Az ingatlan Bükön található, kertes házas, ősfás, parkos, nyugalmas környezetben. A bükfürdői termálfürdő innen 5 percnyi autózással elérhető.
A panzió kiváló pihenőhely az itt áthaladó, Ausztriából, illetve Szlovéniából átutazó turisták számára.
A hely fekvése miatt ideális lehet idősek otthona kialakítására is.
A panzió kiváló pihenőhely az itt áthaladó, Ausztriából, illetve Szlovéniából átutazó turisták számára.
A hely fekvése miatt ideális lehet idősek otthona kialakítására is.
Egyéb információk
A panzió épületében 11 db kétszobás apartman található.
A földszinti központi helyiségben recepció, illetve tágas lobby található, jelenleg reggeliztetésre használják. A földszinten 4 apartman, illetve kiszolgálóhelyiségek (wc, mosókonyha, teakonyha, kazánház) vannak, illetve a jobb oldali szárnyban kapott helyet a 3 személyzeti szállás. Ezek akár irodaként, illetve más funkcióra is használhatók.
Az emeleten egy tágas központi közösségi térből nyílik két oldalon 3, illetve 4 db kétszobás apartman.
Az épület hátsó részén tágas terasz fut végig, ahol akár grillparty is rendezhető. A füvesített udvar alkalmas rendezvények szervezésére is, illetve sportolásra, játékra.
A különálló, emelt szerkezetkész állapotú ház többféle funkcióra alkalmas lehet. Akár további apartmanok is kialakíthatók itt, de a panzió gazdasági-kiszolgáló épülete is lehet, vagy éppen háttérkonyha/étterem is kialakítható itt.
A földszinti központi helyiségben recepció, illetve tágas lobby található, jelenleg reggeliztetésre használják. A földszinten 4 apartman, illetve kiszolgálóhelyiségek (wc, mosókonyha, teakonyha, kazánház) vannak, illetve a jobb oldali szárnyban kapott helyet a 3 személyzeti szállás. Ezek akár irodaként, illetve más funkcióra is használhatók.
Az emeleten egy tágas központi közösségi térből nyílik két oldalon 3, illetve 4 db kétszobás apartman.
Az épület hátsó részén tágas terasz fut végig, ahol akár grillparty is rendezhető. A füvesített udvar alkalmas rendezvények szervezésére is, illetve sportolásra, játékra.
A különálló, emelt szerkezetkész állapotú ház többféle funkcióra alkalmas lehet. Akár további apartmanok is kialakíthatók itt, de a panzió gazdasági-kiszolgáló épülete is lehet, vagy éppen háttérkonyha/étterem is kialakítható itt.